Thinking about selling?
Learn about our proven approach!
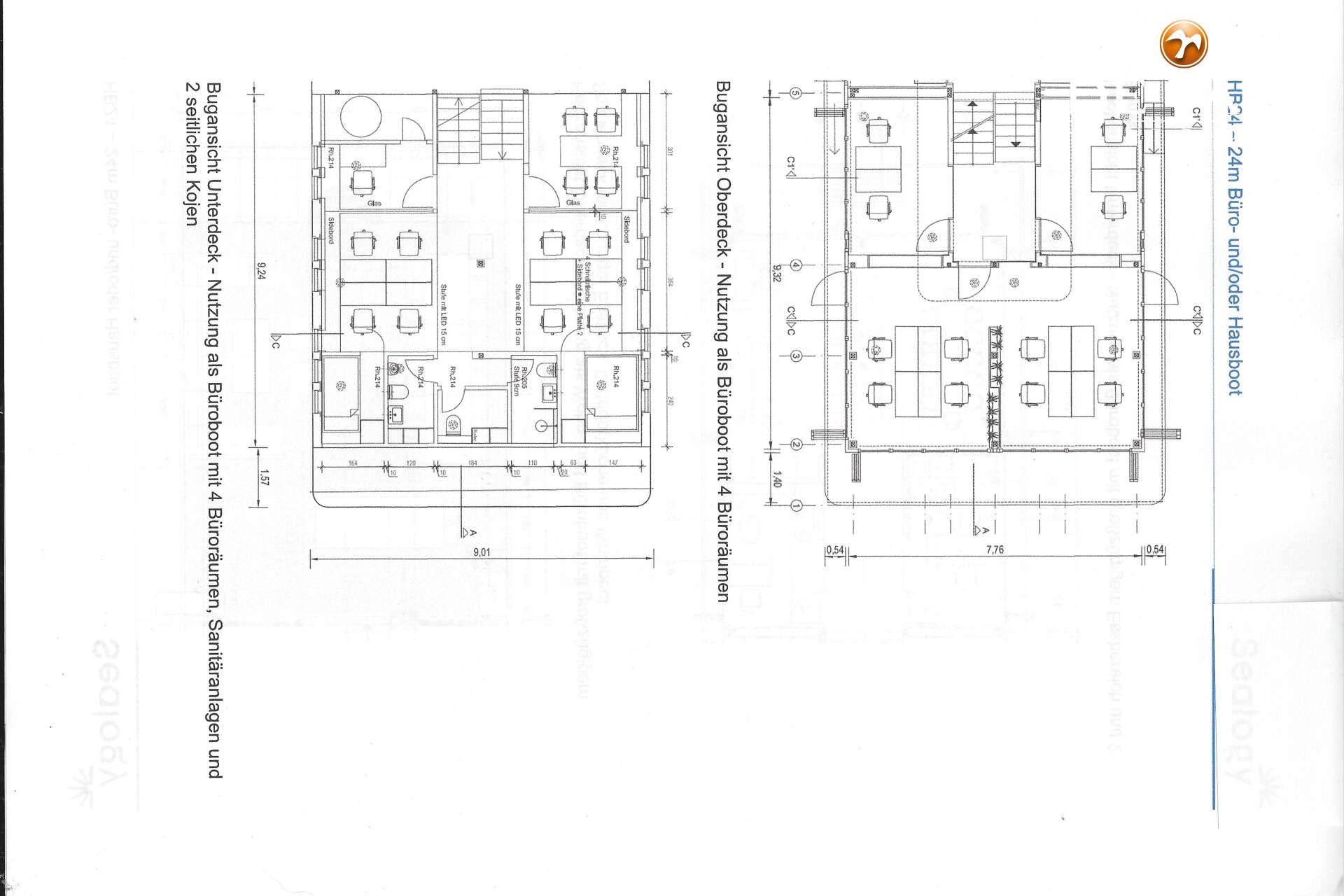
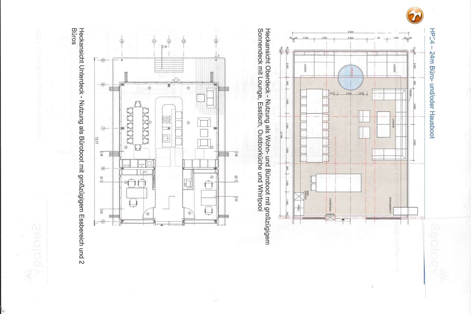
The Sealogy One is one of the most meticulously planned houseboat projects to date. Conceived as a spacious office vessel, it also offers ample room for exceptionally generous living. Its current state of completion allows the interior design to be tailored precisely to your personal preferences. The boat is being offered prior to interior fit-out and final completion; the marine systems and heating technology are, however, largely finished. Thanks to its construction and installed technology, this yacht can be operated year-round in a nearly self-sufficient manner.
Important disclaimer:These particulars are given in good faith as supplied but cannot be guaranteed and cannot be used for contracts.
